(April 14, 2026) The three teams approved by the church congregation have stated their work. You can watch a 35-minute video of the meeting here. The Master Plan Team, chaired by Gary Butler. This team will begin exploring the congregational vision. The work of the team will give way to a building committee that willContinue reading “Congregational Teams Kick-off”
Category Archives: Uncategorized
90% vote in favor of building new sanctuary
(February 22, 2026) In a vote of 127 “yes” and 14 “no,” the Pasadena Community Church membership approved a resolution offered by the PCC Discernment Committee to replace the Hamilton Building and the sanctuary with a new worship center. Six provisional ballots were cast (five in favor and one against) and one person voted toContinue reading “90% vote in favor of building new sanctuary”
The motion that will voted on by church members Sunday Feb. 22, 2026
Pasadena Community Church All Church Conference February 22, 2026 Resolution: WHEREAS: On October 9, 2024, Hurricane Milton struck the Pasadena Community Church sanctuary, and the congregation has not been able to worship there since. WHEREAS: On August 24, 2025, the Pasadena Community Church All Church Conference unanimously voted to suspend the 2022 Masterplan and appointContinue reading “The motion that will voted on by church members Sunday Feb. 22, 2026”
Discernment Committee Recommends Building New Worship Center
February 5, 2026 Discernment Team RecommendationThe Pasadena Community Church Discernment Committee unanimously recommends the passage of a Church Conference vote to build a new worship center that would replace the Hamilton Building and the PCC Sanctuary. Plainly put, the cost of renovating and preserving the Hamilton Building and the Sanctuary would far exceed the costContinue reading “Discernment Committee Recommends Building New Worship Center”
Mattamy names development “SeaWinds” and add details
Mattamy Homes, the developer that will build homes on the two parcels it has purchased from Pasadena Community Church, chose the name “SeaWinds” for the community. This community will include single-family homes on the “soccer field” parcel and townhomes on the other parcel, which is currently the home of the PCC Preschool. Mattamy has alsoContinue reading “Mattamy names development “SeaWinds” and add details”
PCC Family and Friends Come Home for 100th Anniversary
(November 15, 2025) Pasadena Community Church family and friends came home to share stories of the past and share excitement for our plans during our 100th anniversary celebration. Even as PCC plots a future for our campus and ministries, it is important to remember the struggles that nearly closed the church many times over theContinue reading “PCC Family and Friends Come Home for 100th Anniversary”
PCC Celebrates 100 Years as it plans for the future
(November 15, 2025) Hundreds of past and current members and friends celebrated Pasadena Community Church’s 100th anniversary as the church makes plans for the next chapter in our church story.Rev. Mark Holland invited all former pastors, our District Superintendent and our UMC Bishop to the gathering that was both time to reflect on PCC’s remarkableContinue reading “PCC Celebrates 100 Years as it plans for the future”
Membership approved reimagining the 2022 Master Plan
(Sunday, November 2, 2025) The Pasadena Community Church membership unanimously voted to reopen discussions around the 2022 Master Plan. That plan described our vision for the renovation and renewal of our campus. It has become obvious that the plans envisioned in 2022 are no longer viable, considering the damage that storms caused to our Sanctuary.Continue reading “Membership approved reimagining the 2022 Master Plan”
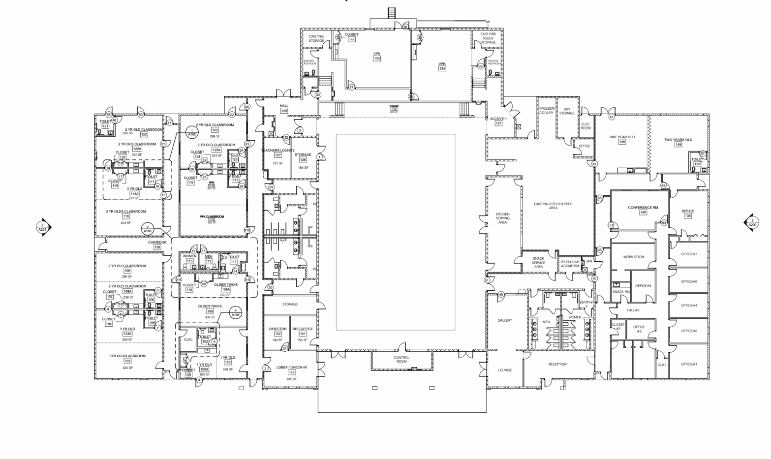
Preschool team picks colors, finishes, fabrics
(October 24, 2025) We sent a great team from PCC Christian Education to Tulsa, Oklahoma to pick out the colors, carpet, tile, countertops, and cabinets for the new space. They met with the design team of Churches by Daniels, the group overseeing the renovation. A big “Thank You” to Angie Hadley, Susan Sanders, Kelly Hermes,Continue reading “Preschool team picks colors, finishes, fabrics”
Sale of “soccer field” parcel is completed
(October 6, 2025) Pasadena Community Church and Mattamy Homes have closed the deal to sell the first of two church-owned parcels known as the “soccer field” property.The sale netted PCC $3,561,210. Trustees Chair Teresa Livingston signed the documents to close the sale Monday afternoon (October 6th). For Building Oversight Committee Chairman Scott Russell, this isContinue reading “Sale of “soccer field” parcel is completed”
